New England hus

New England hus

onsdag 24 januari 2024

Villa Camilla - New England hus som man kan köpa ritningar till


Efter att ha ritat hus med olika kunder från olika kommuner i över 20 år har jag valt att ta fram ett hus i klassisk stil som jag tror skulle passa många människor och många planbestämmelser.

Detta är Villa Camilla med en byggnadsarea på 145 kvadratmeter.

I detta förslag är terrasstaket på 56 kvadratmeter vilket också beräknas som byggnadsarea.
Man får bygga 15 kvm bygglovsfritt skärmtak så skärmtakets placering och storlek får bero på ekonomi och planbestämmelser.

Huset har en byggnadshöjd på 6 m.

Boytan på plan 1 är 126,4 kvm
Boytan på plan 2 är 111, 6 kvm 
Golvytan på vinden är 99 kvm och denna kan inredas.


På Villa Camilla finns inga kupor då jag har märkt att vissa kommuner inte tillåter kupor eller frontespiser och beräknar dessa som byggnadshöjd.
Vissa planbestämmelser är väldigt tydliga medan andra är vaga. Det är dom vaga planbestämmelser som svårast att förhålla sig till då regelverket är otydligt.

Andra kommuner godkänner 30% av takets yta till kupor enligt Boverkets rekommendationer, men detta är inga regler (enbart rekommendationer) och vissa kommuner väljer då enbart att följa tydliga regler. Detta är väldigt frustrerande för oss som önskar rita trevliga hus med kreativa lösningar och spännande utryck. Det är också otroligt frustrerande när kunder önskar torn, kupor och frontespis medan kommuner nekar till detta.
Det mest frustrerande är att grannar oftare än tidigare överklagar och fall går till Mark- och miljödomstolen. Detta innebär att dessa fall blir gällande regler som andra kommuner och vi måste följa utöver det som står i planbestämmelserna och gällande regler.

Som arkitekt skulle jag önska att Boverkets rekommendationer från 2016 blev en regel och inte bara en utredning. Tänk vad vackrare hus vi kunnat skapa och med tydligare regler skulle både handläggare på kommuner och vi som arkitekter veta vad som gäller.

Vi är i samma båt och oftast vill vi detsamma, men vi blir bakbundna av för otydliga regler som kan tolkas av jurister som inte bryr sig ett dugg om gestaltning men om juridiska uttryck


Nu är reglerna som dom är och därför har jag gjort ett förslag på ett hus utan kupor men med en utbyggnad med nockhöjd på 6 meter så det överensstämmer med 6 meters byggnadshöjd.

Se sektionsbilden nedan som visar byggnadshöjd på 6 m, nockhöjd på utbyggnaden på 6 meter och nockhöjden på hela huset på 9,78 m med 40 graders taklutning:



New England inspirerad hus med utbyggnad:



Huset har en ren men distinkt och välkomnande entré:





Välkommen in!

Klicka på bilden nedan för att komma till den virtuella rundvandringen på Youtube:


Terrasstaket har en byggnadsarea på 56 kvm men kan minskas och justeras utifrån planbestämmelser, tomtens beskaffenhet och kundens önskemål.


I denna trädgård har jag lagt in ett poolområde och en pergola med utekök.
En pergola är bygglovsfri och kan vara ett bra alternativ till uterum och veranda.
Man kan alltid lägga på en markisduk över pergolan för att skydda mot regn och sol.


Traditionsenligt är det inte så vanligt med terrasstak i Skandinavien vilken jag personligen inte kan förstå. Är det någon plats man behöver skydd för regn (och sol) under sommarperioden när man vill vara ute så är det väl verkligen här uppe i nord.

Med ett terrasstak kan man ha skön utomhusmöbler med dynor och kuddar ute även om det kommer en skvätt regn. Personligen tycker jag också det är skönare att äta i skuggan än att sitta i gassande sol.
På kvällarna håller sig värmen bättre under tak och dynerna blir inte blöta av nattens dagg.


Jag har själv bott i sekelskifteshus den störta delen av mitt liv och husen var utan något skyddande tak för utevistelse. Nu bor jag i ett egenritat New England inspirerad hus med många uteplatser under tak. Jag är så himla nöjd över våra terrasstak och rekommenderar det verkligen om man som jag gillar att vara ute och ha sköna möbler med dynor och kuddar utomhus.


Nattbild:


Attefallsregler

Om man skulle önska ha kupor samt bygga ut huset med 15 kvadratmeter kan man göra detta med hjälp av Attefallsreglerna. Detta får göras efter slutbesiktning och huset är klart.
Här skulle jag önska att man kunde ansöka om detta i samband med bygglovsansökan eller när man fått startbesked så att man kan planera och bygga mera kostnadseffektivt.
Det är en fördyrande process att behöva bygga till eller på efteråt.
När Attefallsreglerna kom var det flera kommuner som var generösa och möjliggjorde att ansöka om Attefallstillbyggnad och kupor efter bygglov var beviljad men det godkänns tyvärr inte längre. Nu är det efter slutbesked.

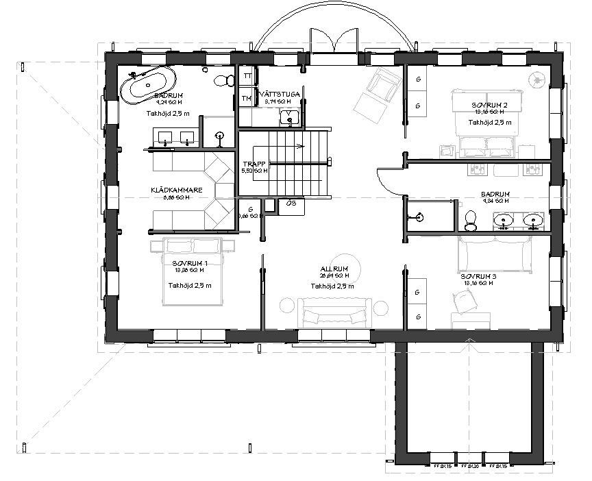
Plan 1

Boytan på plan 1 är på 126,4 kvm och består av en välkomnande hall, kapprum, badrum med tvättmaskin för tillgänglighet, stort sovrum, kök och vardagsrum med öppen planlösning samt TV-rum som kan stängas av med skjutdörrar.




När man kommer in genom dubbeldörrarna välkomnas man av att kunna blicka igenom huset till trädgården. 


Här finns gott om förvaring och till vänster finns kapprum och badrum.


Till höger finns förvaring och ingång till sovrummet som finns på nedre plan.


När man går rakt fram från hallen kommer man in i kök och vardagsrum med öppen planlösning.
Här visar jag två olika förslag till disponering av rummen.

Ett förslag är att ha matplats i utbyggnaden med full nockhöjd och en sittgrupp vid kakelugnen.


Ett annat förslag är att ha vardagsrumsdelen i utbyggnaden med full nockhöjd och matplatsen mellan kök och TV-rum.


Är man som jag en som älskar att flytta på möbler och ändra är det toppen att ha utrymmen som kan användas till det man känner för i stunden. Det är en smaksak hur man vill ha det och vi lever alla olika liv med olika behov. Möjligheterna finns för flera lösningar.

Här är matsalen i utbyggnaden:


Här är vardagsrumsdelen i utbyggnaden:


Köket är rymligt med en köksö i mitten. I hörnet finns ingången till ett relativt rymligt skafferi.


Vyn från köksön med matsal i utbyggnaden:


Vy från köksön med vardagsrumsdelen i utbyggnaden:


Min personliga favorit är att ha vardagsrumsdelen i utbyggnaden, men jag vet att jag själv säkerligen skulle flytta runt möbler efter något år eller så och placera matplatsen i utbyggnaden. 

Här är vyn från glasutbyggnaden till köket och vidare till entrén:


TV-rummet är placerad i ett eget rum med skjutdörrar i glas som gör att det är möjligt att skilja av rummet om någon vill titta på TV medan andra umgås i kök/vardagsrum.


TV-rummet är på drygt 18 kvm och har utgång via dubbeldörrar till uteplatsen.

Om dörrarna är öppna är det ett fritt flöde till köket:


När skjutdörrarna är stängda känns det ändå som om man har kontakt med köksdelen, men man stoppar ljudet. Perfekt om man har barn som vill se på TV efter maten och föräldrarna som kan sitta kvar och prata utan att höra TV-ljudet men ändå ha full koll.


På nedre plan finns även ett sovrum på drygt 16 kvadratmeter med gott om förvaring och utgång ut genom dubbeldörrar till uteplatsen. Rummet kan användas till både sovrum och kontor eller vad som helst. Det att rummet har egen ingång möjliggör att man hyra kontor i sitt egna hem enligt Skatteverkets regler.



På andra sidan av hallen finns kapprum och badrum.
Från kapprummet finns ingång till teknikrummet. Om man väljer att ha teknikrummet i ett garage istället så kan teknikrummet användas som förvaring om ca 4 kvm.
Man kan aldrig ha för mycket förvaringsmöjligheter i ett hus.


För att tillgodose tillgängligheten i huset har vi på nedre plan placerat en kombimaskin i badrummet.
Den riktiga tvättstugan är placerad på övre plan nära sovrum för att slippa springa upp och ned med kläder, handdukar och sängkläder som man tvättar mest.


Välkommen upp till plan 2 via trappan som också har förvaring under.


Plan 2

Plan 2 består av ett allrum i mitten, 3 sovrum varav 2 delar på ett badrum och ett sovrum har eget badrum och walk-in-closet. Tvättstugan finns med ingång från allrummet.
Önskar man större tvättstuga kan man ta yta från badrummet bredvid och omdisponera ytorna.



I allrummet på ovanplan finns möjlighet för öppen spis.


Allrummet går igenom hela huset och har ingång till tvättstuga, sovrummen och det gemensamma badrummet. Här finns även möjlighet till trapp upp till vinden som är stor nog att inredas.


Tvättstugan finns bakom skjutdörren vid trappan. Här finns tvättmaskin, torktumlare, vask, upphängningsmöjligheter. Önskar man en större tvättstuga kan man ta yta från det stora badrummet som ligger bakom väggen:


På andra sidan om allrummet finns ett sovrum. Från allrummet kan man också gå ut via dubbeldörrar till den lilla verandan över entrén. Här kan man kanske ha en läshörna eller varför inte ett kontorsutrymme?


Totalt finns 3 sovrum på plan 2. Nedan presenteras sovrum 2 på drygt 13 kvm med plats för dubbelsäng och förvaring.


Mellan sovrum 2 och 3 som är lika stora finns ett gemensamt badrum med dubbelhandfat, dusch, toalett och förvaringsmöjligheter. Just här har jag ritat in ett dubbelhandfatets Agnes från Qvesarum som jag tycker passar i stilen.



Sovrum 1 och 2 är lika stora på drygt 13 kvadratmeter.
Här är det inrett som ett barnrum med en 120 cm bred daybed.
Även detta rum får plats med en dubbelsäng om det skulle passa bättre.



På andra sidan om allrummet finns föräldrasovrummet med egen walk-in-closet och badrum.
Även detta sovrum är på drygt 13 kvm:



Klädkammaren är på ca 9 kvm och rymmer en hel del:


Föräldrarnas badrum har dubbelhandfat, stor dusch, badkar och toalett.
Vilken stil och handfat man önskar väljer man helt själv. Detta är endast förslag till disponering.



Då huset är ritat med en byggnadshöjd på 6 meter och taklutningen är 40 grader möjliggör det att vinden inreds. Vissa planbestämmelser godkänner inredning av vind medan andra inte.
I detta förslag har jag ritat in en inredd vind med en golvyta på 99 kvm.

Här finns otaliga förslag på inredning - jag har lagt in ett gym och ett sovrum och gjort kattvindar (som också kan nyttjas till förvaring). 
Det är dock möjlighet att lägga in ett badrum här också om det skulle önskas.


Hallen på vinden. Här kommer skorstenen upp från nedervåningen.


Här finns plats för ett sovrum på 15 kvm om det skulle önskas.



På andra sidan om hallen har jag lagt in ett gym på drygt 22 kvm.
Här kan man också lägga in ett sovrum och ett badrum om så skulle önskas.
Möjligheterna är många.

Kattvinden kan också användas till förvaring.



Hoppas att Villa Camilla som vi har valt att kalla detta New England inspirerad hus faller i smaken.
Detta hus kan du köpa ritningar till och vi kan justera huset utifrån dina önskemål, tomtens beskaffenhet och planbestämmelser. Mycket kan förändras och detta är endast ett förslag på planlösning som bygger på många kunders önskemål under åren.

Vissa gillar fönsterluckor medan andra föredrar en renare stil.
Nedan visas huset med olika alternativ.

Här med fönsterluckor och ganska klassiska New England inspirerade fönster:


Här är huset utan fönsterluckor:


Beroende på planbestämmelserna och tomtens beskaffenhet önskas kanske en veranda istället för terrasstak. Här är huset med veranda:


Fönsterutformning och kulörer påverkar husets uppfattning. 
Här är huset med grönt tak och bågfönster i utbyggnaden.


Ett rött tak?


Svart tak är lämpligt om man väljer solcellspaneler. 


Fönstrens form påverkar också husets upplevelse. Raka linjer eller bågfönster?


Om detta är av intresse är du välkommen att kontakta Heidi Mikalsen hos oss på Dreams & Coffee AB.
Det är Heidi som har ritat huset och som gärna anpassar det efter dina önskemål.

Du når Heidi på telefon 0703-998755 eller mail heidi@dreamsandcoffee.se

Besök hemsidan för priser och mer information.

Hoppas vi hörs!


Bästa hälsningar
Heidi Mikalsen 
(som här var på besök hos kund i Stocksund strax innan jul)